
UPDATED:
Key Details
Property Type Single Family Home
Sub Type Single Family Residence
Listing Status Active
Purchase Type For Sale
Square Footage 3,121 sqft
Subdivision Southridge
MLS Listing ID 21146142
Style Contemporary/Modern,Craftsman
Bedrooms 5
Full Baths 3
HOA Fees $630/ann
HOA Y/N Mandatory
Year Built 2025
Lot Size 5,998 Sqft
Acres 0.1377
Lot Dimensions 50x120
Property Sub-Type Single Family Residence
Property Description
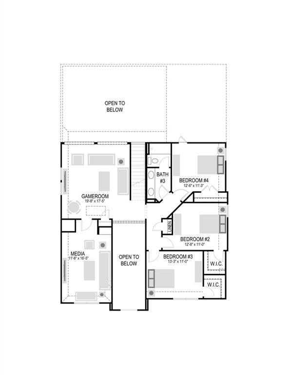
- Built by Trophy Signature Homes - Mar 2026 completion! ~ The Winters plan is tailored to fulfill your requirements currently and for the long term. With five bedrooms, everyone enjoys their own space, accompanied by three bathrooms for added convenience. Impress your guests as you entertain at the central island in the kitchen, seamlessly flowing into the breakfast nook and family room. Meanwhile, guests can enjoy their own entertainment in the game room and media room. The primary suite boasts an outstanding walk-in closet for added luxury!
Location
State TX
County Collin
Community Community Pool, Jogging Path/Bike Path, Playground
Direction Follow Highway 75 North to N Central Expy N in McKinney. Take exit 41 toward 380 and take a right. Turn left onto New Hope Rd W and take a right onto Co Rd 408. Take a left onto FM75 and another left onto Pheasant Trl. Turn left at the first cross street onto High Valley Dr and the Sales Office
Rooms
Dining Room 1
Interior
Interior Features Cable TV Available, Decorative Lighting, High Speed Internet Available, Open Floorplan, Pantry, Vaulted Ceiling(s), Walk-In Closet(s)
Heating Central
Cooling Ceiling Fan(s), Central Air
Flooring Carpet, Laminate, Luxury Vinyl Plank
Appliance Built-in Gas Range, Dishwasher, Disposal, Electric Oven, Gas Cooktop, Microwave, Plumbed For Gas in Kitchen, Tankless Water Heater
Heat Source Central
Laundry Electric Dryer Hookup, Utility Room, Full Size W/D Area, Washer Hookup
Exterior
Exterior Feature Covered Patio/Porch, Rain Gutters, Lighting, Private Yard
Garage Spaces 2.0
Fence Back Yard, Wood
Community Features Community Pool, Jogging Path/Bike Path, Playground
Utilities Available City Sewer, City Water
Roof Type Composition
Total Parking Spaces 2
Garage Yes
Building
Story Two
Foundation Slab
Level or Stories Two
Structure Type Brick,Rock/Stone,Siding
Schools
Elementary Schools Green
Middle Schools Southard
High Schools Lovelady
School District Princeton Isd
Others
Virtual Tour https://www.propertypanorama.com/instaview/ntreis/21146142

Get More Information





